12760 St James Pl Unit A, Newport News, VA 23602
Toggle Navigation
Images
3D Tour
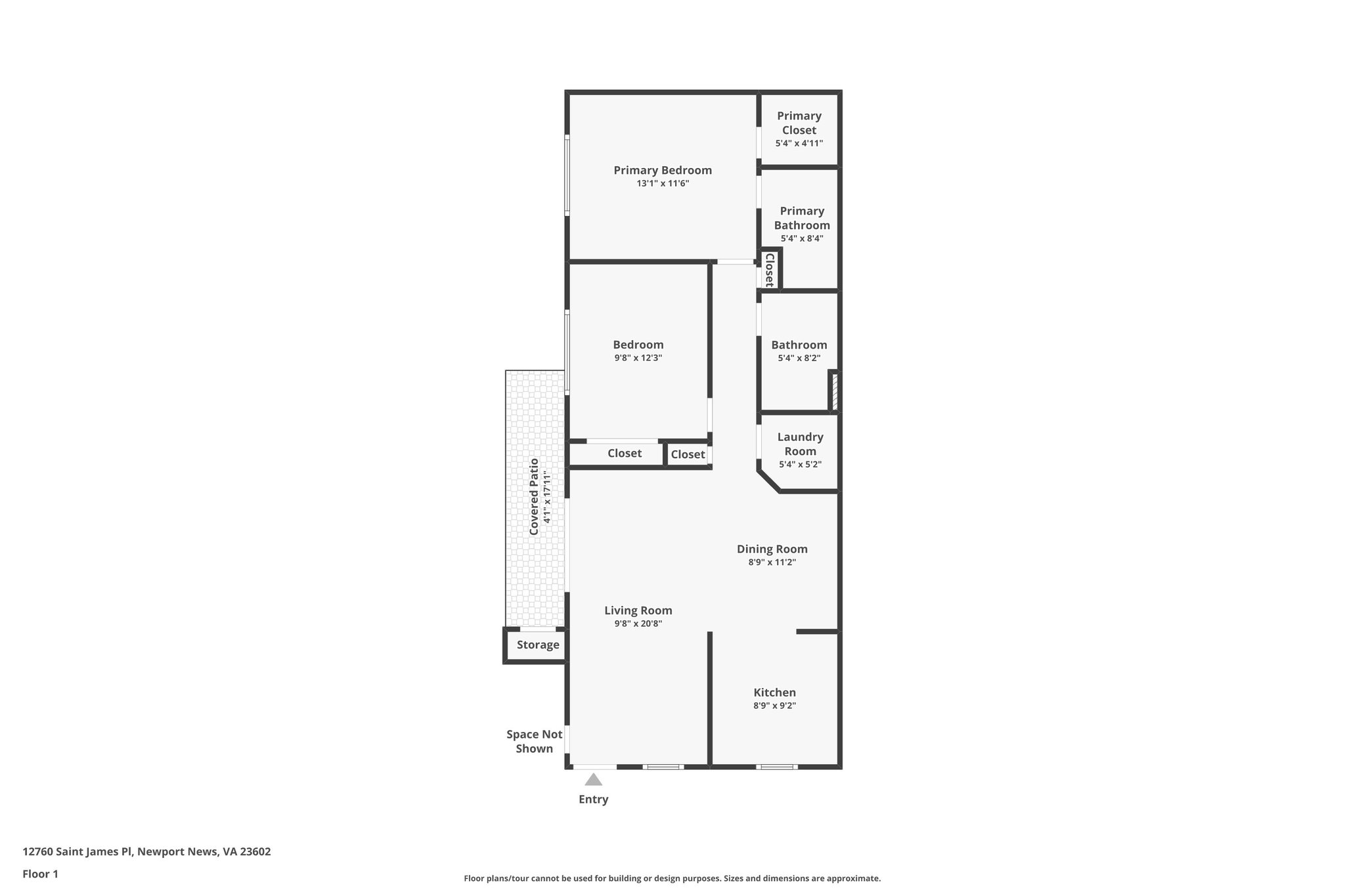
Floor Plans
Map
12760 St James Pl Unit A
Newport News, VA 23602
Scroll to Content
Images
Slideshow
Photo Grid
Hide
Previous
Next
Show more
3D Tour
Floor Plans
Slideshow
Photo Grid
Hide
Previous
Next