13389 Chesapeake Pl, Carrollton, VA 23314
Toggle Navigation
Images
3D Tour
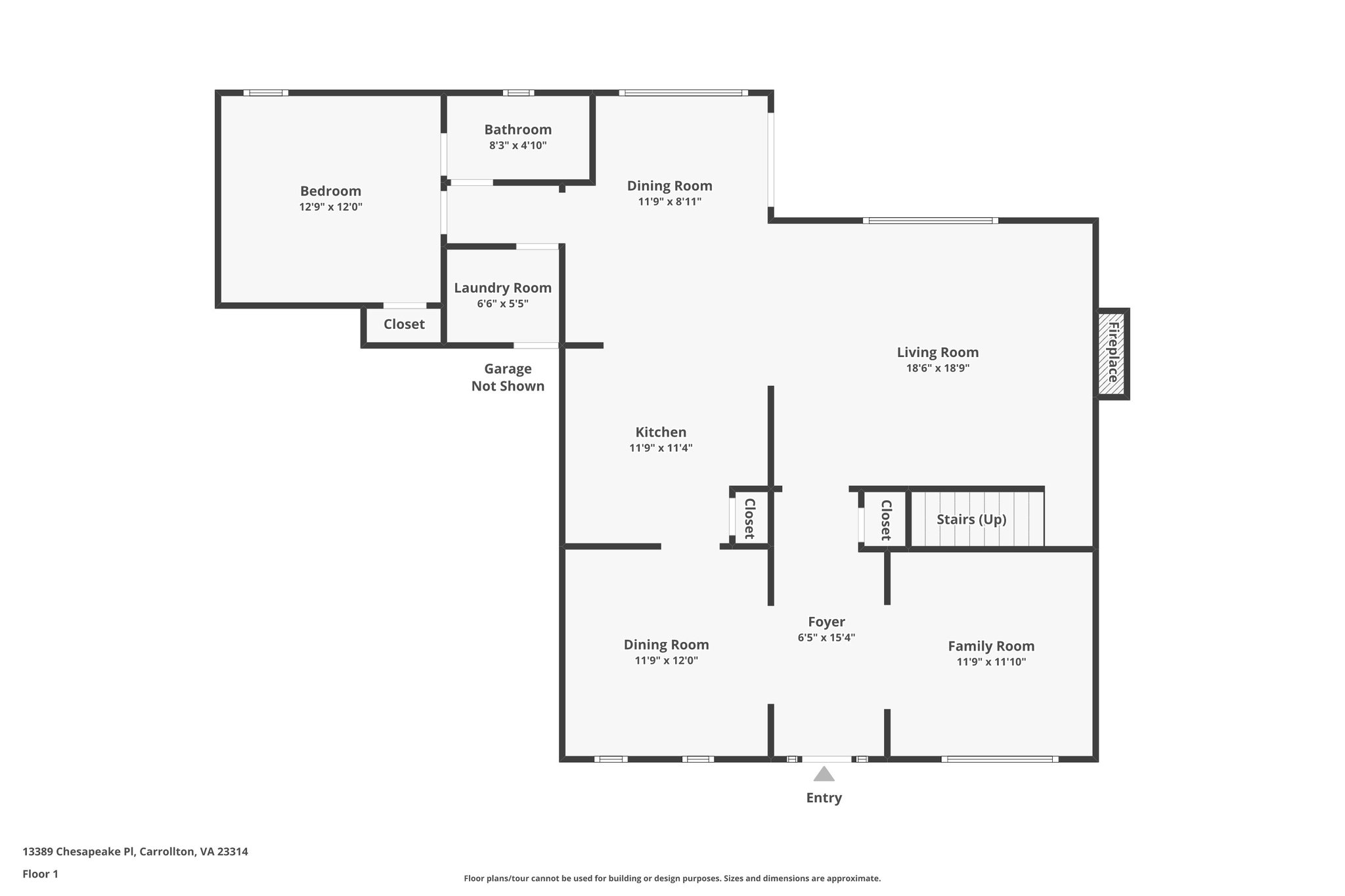
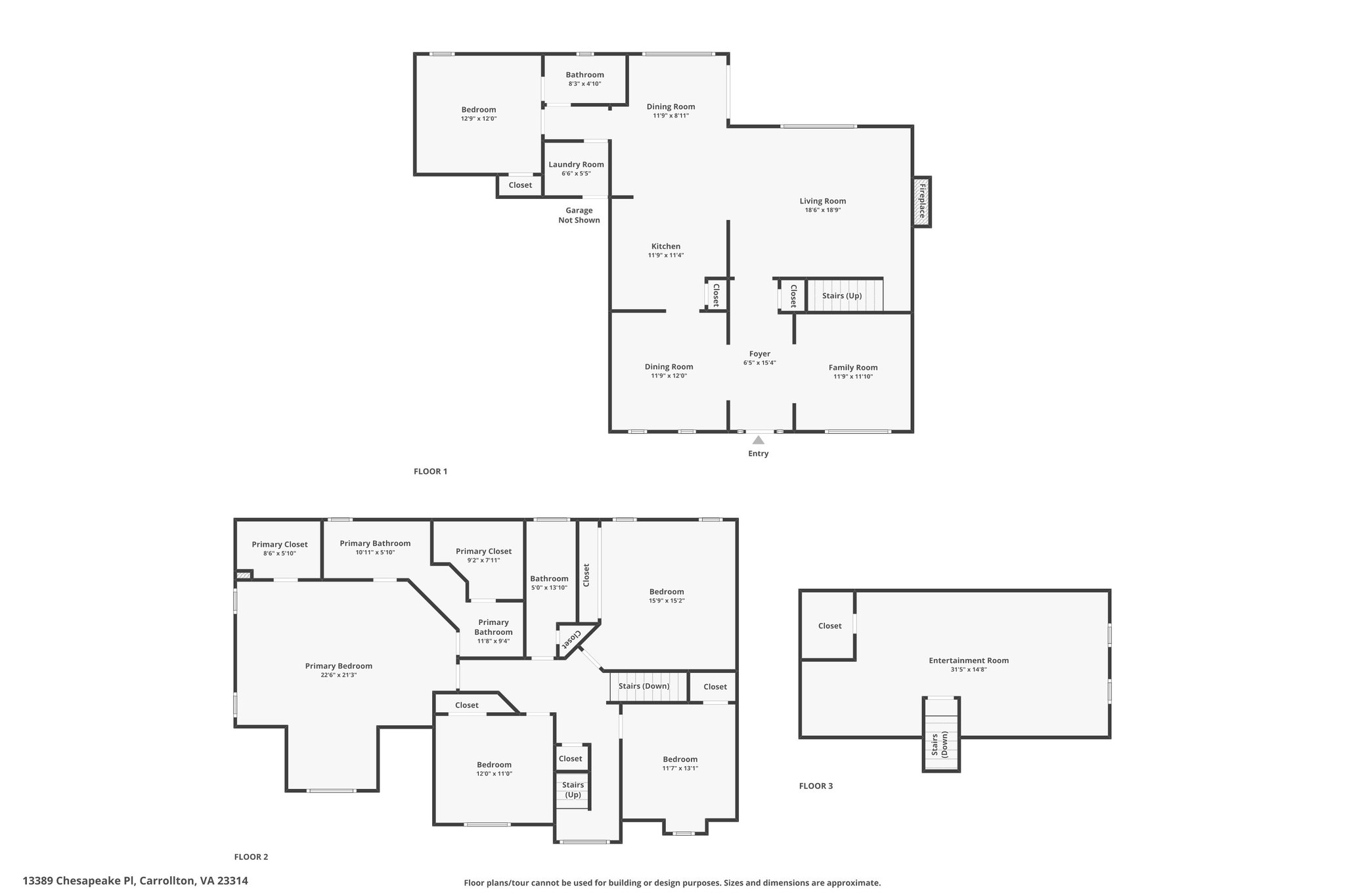
Floor Plans
Map
13389 Chesapeake Pl
Carrollton, VA 23314
Scroll to Content
Images
Slideshow
Photo Grid
Hide
Previous
Next
Show more
3D Tour
Floor Plans
Slideshow
Photo Grid
Hide
Previous
Next